9 APARTAMENTOS EN CALLE COMEDIAS
Arquitecto
José Antonio González Vargas
Situación
C/Comedias nº3 y C/Mosquera nº4, Málaga.
Promotor
GRUPO M CONTIGO S.L.U.
Fechas
2018 (proyecto)
2025 (obra finalizada)
Superficie
602,40 m²
Colaboradores
Nicolás García Rodríguez. Arquitecto
Jorge Suárez de Puga. Infografista 3D
Dirección de obra
José Antonio González Vargas
Dirección de ejecución de obras
Francisco Javier Herrero Montes. Arquitecto Técnico
Rafael Machuca Rodriguez. Arquitecto técnico
Constructora
DEOGA DESARROLLO Y EJECUCIÓN DE OBRA, S.L
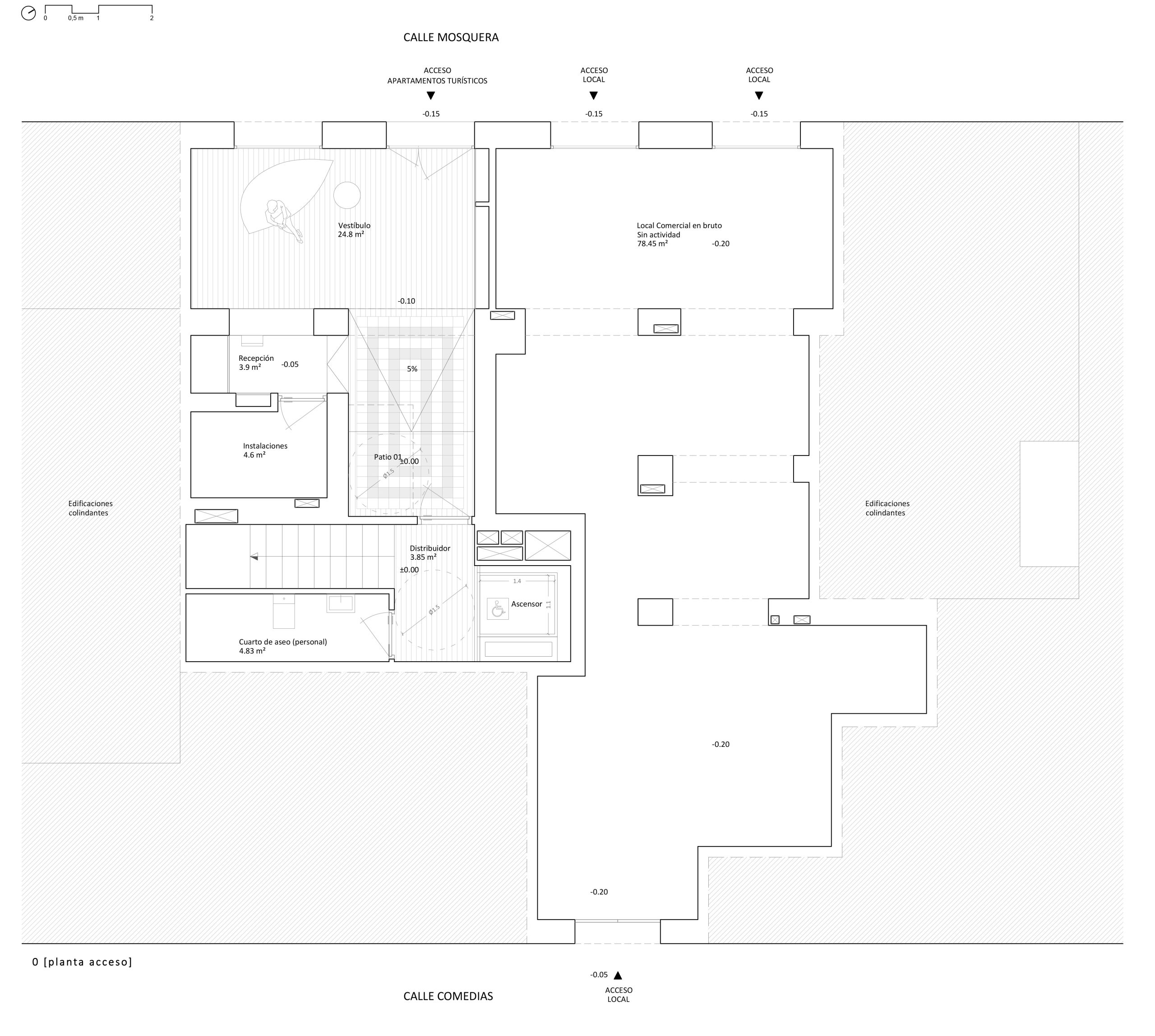
Se proyecta la rehabilitación integral del inmueble protegido para su adecuación como complejo de apartamentos turísticos en el casco histórico de Málaga, manteniendo su configuración tipológica, constructiva y su volumetría original.
La intervención estructural consolidará la estructura vertical existente, conservando y rehabilitando los elementos históricos que puedan ser aprovechados. Los forjados de madera en mal estado se sustituirán por nuevos forjados unidireccionales, asegurando la estabilidad del conjunto. Asimismo, se propone una reorganización de la distribución interior de tabiques, adaptada a la estructura actual, con el objetivo de mejorar las condiciones de habitabilidad, salubridad y eficiencia energética mediante la renovación de acabados, instalaciones y carpinterías
































