UNIDAD PSICOGERIATRÍA SAN JUAN DE DIOS
Arquitecto
José Antonio González Vargas
Situación
Camino de Casabermeja nº126, Málaga
Promotor
Orden Hospitalaria San Juan de Dios
Fecha
2018 (proyecto)
2018 – 2023 (obra finalizada)
Superficie
3019 m²
Colaboradores
Nicolás García Rodríguez. Arquitecto
Director de obra
José Antonio González Vargas
Director de ejecución
Francisco Herrero Montes
Constructora
Construcciones T. Arjona S.L.
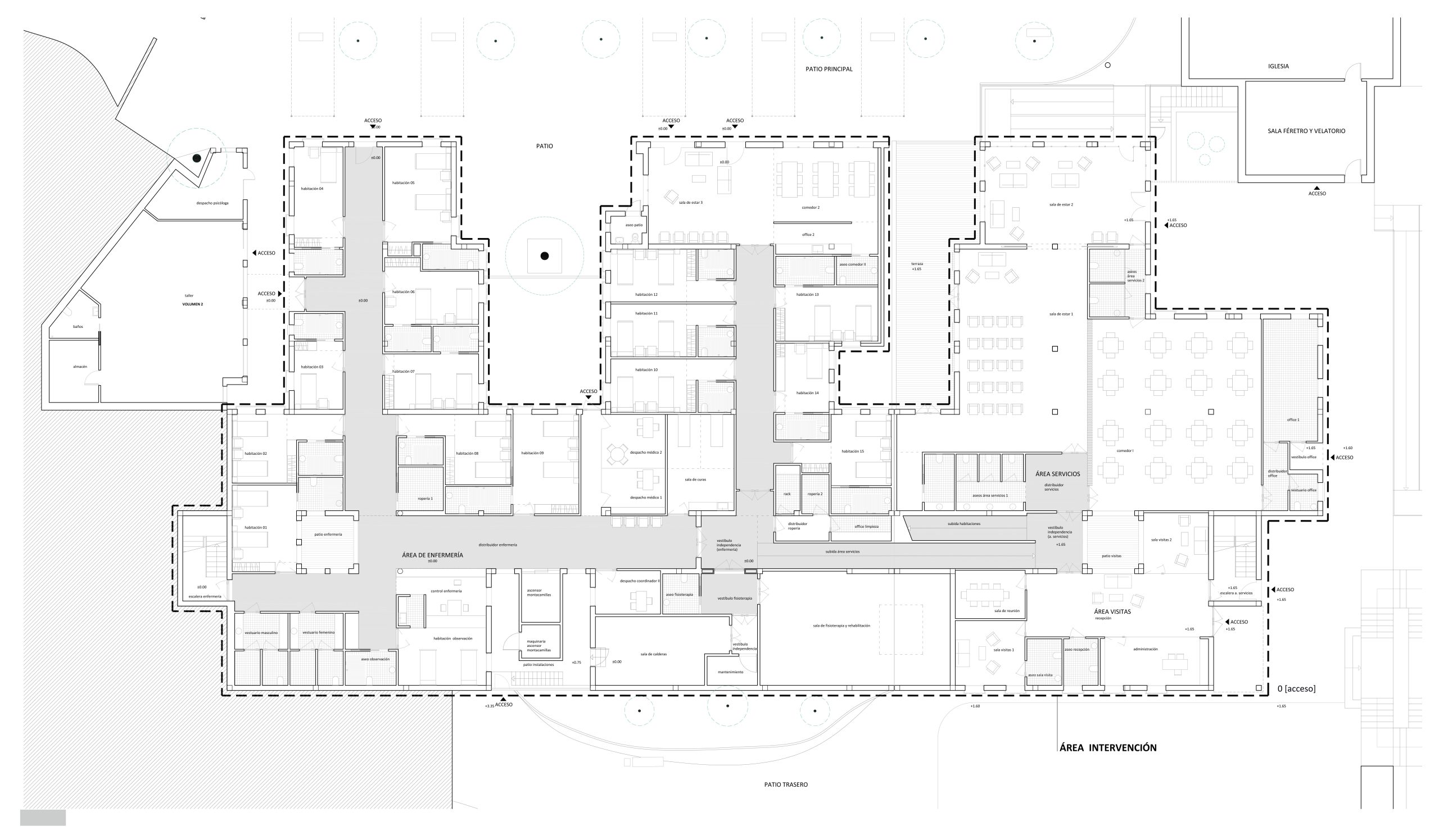
El objetivo fundamental de las obras de reforma y acondicionamiento interior de la unidad de psicogeriatría del Centro Asistencial de San Juan de Dios de Málaga, es la adecuación y mejora de los distintos espacios a la normativa vigente actual para Centro de Mayores en situación de dependencia, así como al resto de normas y reglamentos vigentes.
El edificio cuenta con varias entreplantas adaptadas a la topografía y conectadas mediante rampas peatonales. Su volumen principal, compuesto por una pieza longitudinal y tres brazos perpendiculares, genera patios que favorecen la ventilación e iluminación natural.
La reforma no solo optimiza la redistribución de espacios para mejorar la funcionalidad y cumplimiento normativo, sino que también incorpora nuevos materiales y acabados más duraderos y fáciles de mantener. Se amplían las dotaciones de la unidad, incluyendo áreas específicas para encuentros, tratamientos y terapias, con el objetivo de reforzar la integración y convivencia de los usuarios.
Se trata de una propuesta que equilibra accesibilidad, confort y sostenibilidad, promoviendo un entorno más adecuado y adaptable a las necesidades de los residentes.
















