TIENDA ANÍS BRAVÍO EN ESTEPA
Arquitecto
José Antonio González Vargas
Situación
Calle Ajonjolí 26, Estepa, Sevilla.
Promotor
Distribuciones Nieto Gallardo de Estepa S.L.
Fechas
2020 (proyecto)
Superficie
272,20 m²
Director de obra
José Antonio González Vargas. Arquitecto
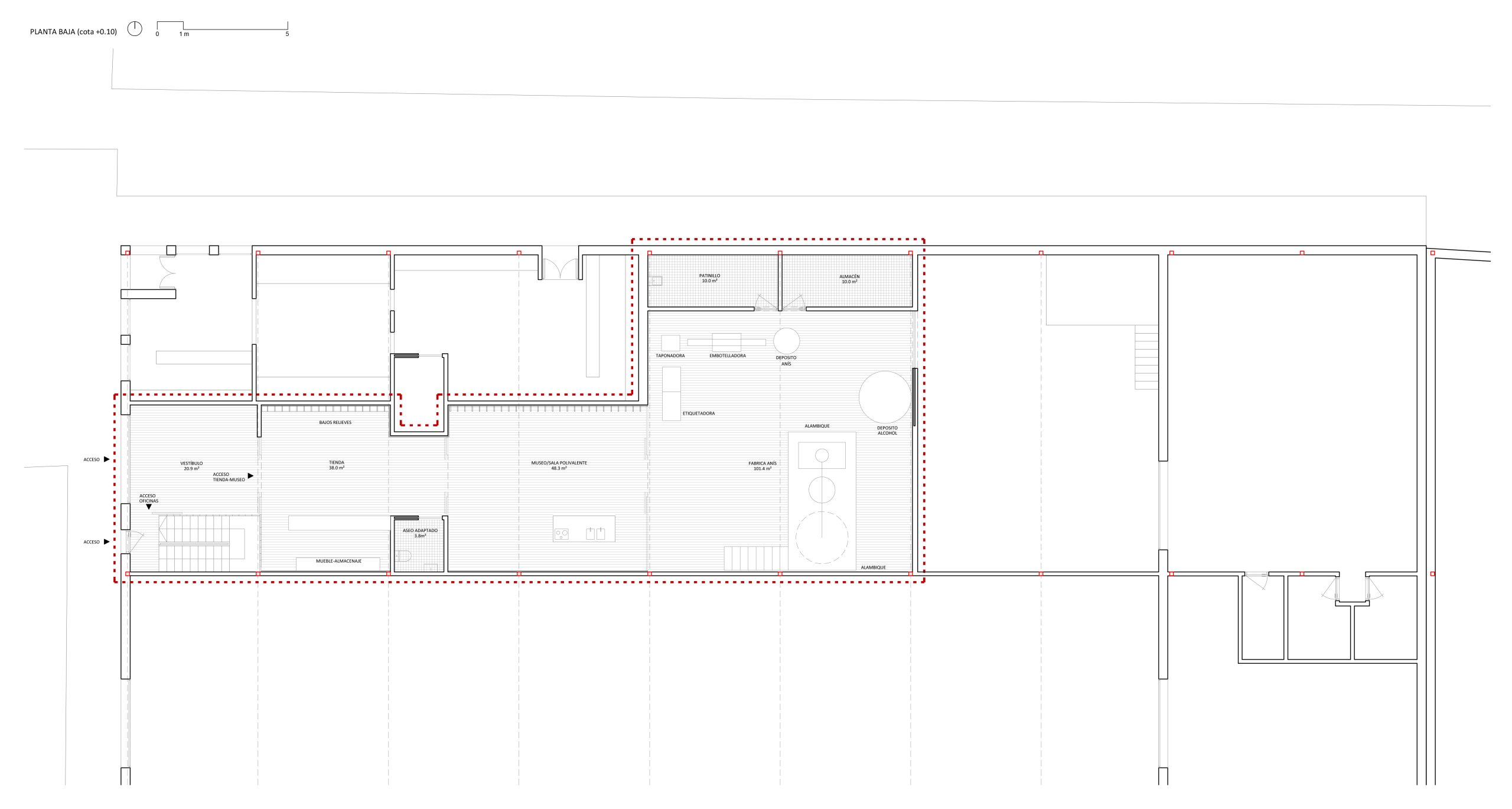
Se propone intervenir en parte de la nave industrial de Distribuciones Nieto Gallardo de Estepa SL para crear espacios dedicados a la venta, promoción y producción del Anís Bravío.
La intervención incluye una estructura ligera que aclimatará el espacio interior utilizando materiales como madera y acero. Los huecos existentes en la fachada se aprovechan: uno, más pequeño, para la escalera hacia la zona administrativa, y otro, más amplio, como acceso principal al hall público que conecta con la tienda y el museo.
El proyecto contempla una tienda equipada con mostrador, áreas de almacenaje y exposición, junto a un aseo adaptado. Además, se diseña un espacio multifuncional para museo y degustaciones. El recorrido culmina en la fábrica de anís, donde se ubican las máquinas tradicionales para su elaboración.





