OFICINA ONU HOSPITAL NOBLE
Arquitecto
José Antonio González Vargas
Situación
Antiguo Hospital Noble. Plaza General Torrijos, Málaga.
Promotor
Instituto Municipal de la Vivienda
Fechas
2018 (proyecto)
2020 (obra finalizada)
Superficie
373,70 m²
Director de obra
José Antonio González Vargas
Constructora
IRC SERVICIOS Y OBRAS SIGLO XXI S.L.,
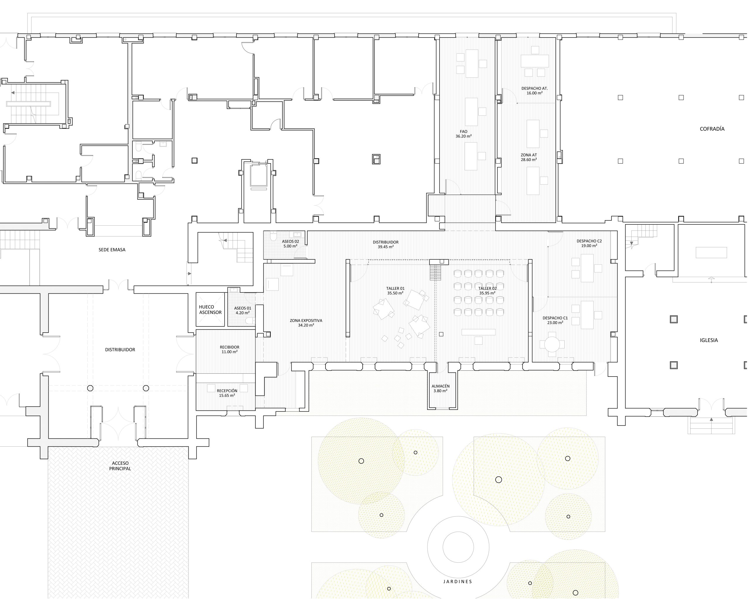
El proyecto abarca la rehabilitación parcial y el acondicionamiento del ala este de la planta baja del Antiguo Hospital Noble, situado en Plaza General Torrijos 2, Málaga. Su objetivo es crear dos espacios diferenciados: un área pública destinada a talleres y una sala expositiva, y una zona privada reservada para los trabajadores de UNITAR.
El acceso principal se realiza a través de la entrada original del edificio, integrando el vestíbulo como parte del recorrido. Se diseña un amplio distribuidor que conecta los talleres, iluminado naturalmente gracias a dos generosos huecos permeables que maximizan la luz.
La intervención respeta íntegramente la estructura y los huecos existentes, preservando tanto la composición como las características originales de la fachada.





![\Nas-gvarquitemastrabajos[65]reforma hospital noble UNITARd](https://gonzalezvargas.es/wp-content/uploads/2026/04/34-_planta-baja-as-built-scaled.jpg)
![\192.168.0.10arquitemastrabajos[65]reforma hospital noble UN](https://gonzalezvargas.es/wp-content/uploads/2026/03/34-_seccion-constructiva-scaled.jpg)