OFICINAS COWORKING PROMALAGA
Arquitecto
José Antonio González Vargas
Situación
C/Álamos nº34, Málaga
Promotor
IMV Instituto Municipal de la Vivienda
Promálaga
Fechas
2014 (proyecto)
2015 (obra finalizada)
Superficie
510,50 m²
Colaboradores
Nicolás García Rodríguez. Arquitecto
Jorge Suárez de Puga. Infografísta 3D
Director de obra
José Antonio González Vargas
Director de ejecución de obras
Francisco Javier Herrero Montes. Arquitecto técnico
Rafael Machuca Rodriguez. Arquitecto técnico
Constructora
COMEJI, S.A.
La intervención en el inmueble de C/ Álamos nº34, Málaga, tiene como objetivo rehabilitarlo para albergar un Centro de Investigación en desarrollo económico, social y cultural. Este proyecto busca fomentar el emprendimiento mediante espacios de trabajo compartido y zonas comunes gestionadas por PROMÁLAGA, entidad de apoyo empresarial.
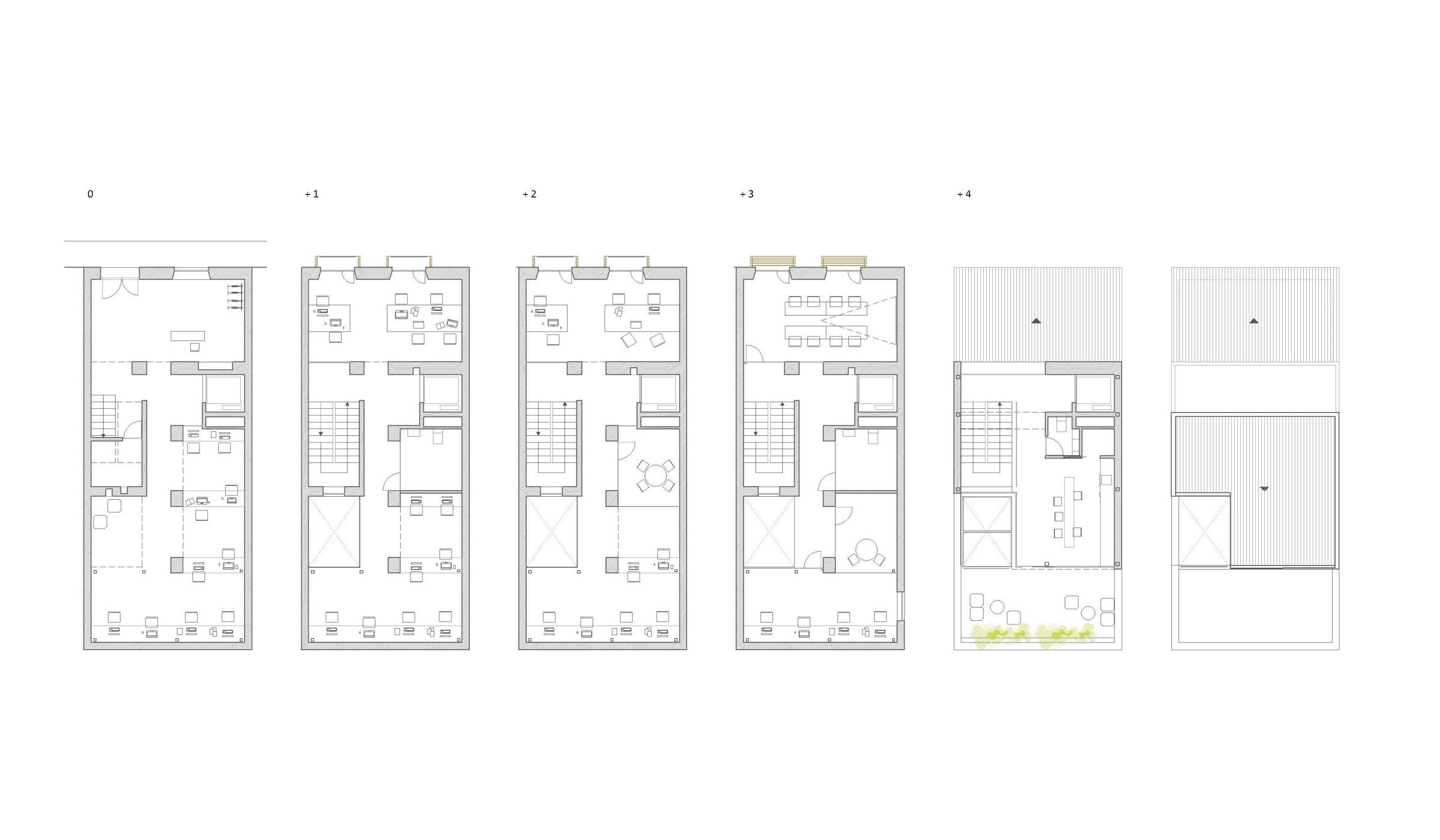
La rehabilitación preservará la estructura original de madera sobre muros de carga, respetando los huecos y balcones, sustituyendo únicamente carpinterías y cerrajerías, e incorporando celosías de madera. La distribución gira en torno a un núcleo de comunicación vertical que facilita el acceso a plantas diáfanas, bien iluminadas y ventiladas a través de la fachada y el patio.
El patio, cubierto parcialmente con vidrio para garantizar ventilación, tiene una disposición vertical que optimiza la entrada de luz natural. Las plantas baja, primera y segunda cuentan con espacios de trabajo abiertos con aseos y salas de reuniones con divisiones ligeras y translúcidas. La tercera planta está destinada a reuniones y colaboración entre emprendedores, mientras que la cuarta alberga un área de descanso con terraza para momentos de relax.
























