ESPAM (ESCUELA DE SEGURIDAD PÚBLICA)
Arquitecto
José Antonio González Vargas
Situación
Avenida Santiago Ramón y Cajal nº105, Málaga.
Promotor
Gerencia Municipal de Urbanismo, Obras e Infraestructuras
Fechas
2008 (proyecto)
2010 (obra finalizada)
Superficie
590,72 m²
Colaboradores
Lucas García Vacas. Arquitecto.
Director de obra
José Antonio González Vargas. Arquitecto.
Director de ejecución de obra
José Luis Ruíz Cuadra. Arquitecto técnico.
Constructora
PROMECO 2000 S.L.
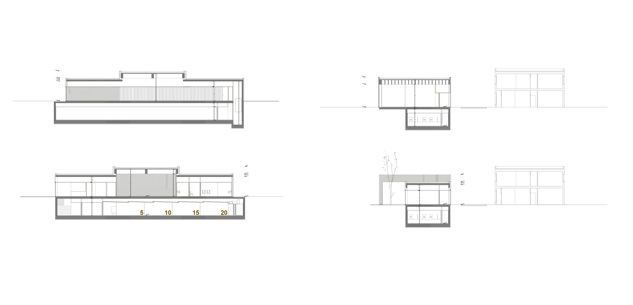
El edificio destinado a la incorporación de una zona deportiva y de formación está ubicado en el solar de la Escuela de Seguridad Pública organizándose en torno a un esquema funcional compacto. En la planta sótano se disponen dos galerías especializadas: una destinada a prácticas de tiro y otra para simulaciones virtuales. La planta baja alberga el gimnasio, los vestuarios y las áreas administrativas, todo ello articulado mediante un eje horizontal que atraviesa ambas plantas y aporta luz natural al conjunto.
Su diseño, contundente y austero, responde a la naturaleza de su programa, otorgando al gimnasio un papel central dentro de la composición arquitectónica.









