ALBERGUE RURAL HERRIZAS MINGO
Arquitecto
José Antonio González Vargas
Situación
Herrizas de Mingo, polígono 7, parcela 75, Estepa, Sevilla.
Promotor
Privado
Fechas
2016 (proyecto)
2019 (obra finalizada)
Superficie
697,25 m²
Colaboradores
Nicolás García Rodríguez. Arquitecto
Director de obra
José Antonio González Vargas
Director de ejecución de obras
Enrique Trigos Manzano. Arquitecto técnico
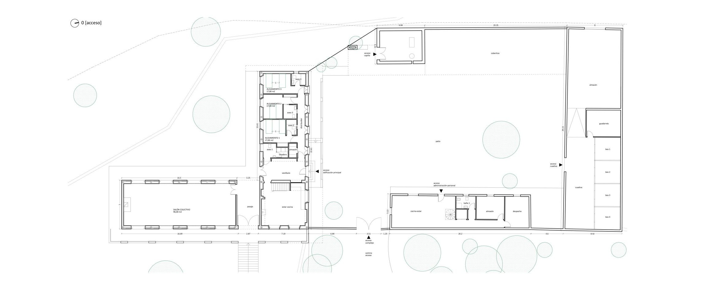
La intervención busca implantar un equipamiento turístico-recreativo, respetando el contexto rural y ecológico de la finca. Su impacto visual es mínimo gracias a la ubicación de las edificaciones existentes y la integración con el entorno.
La finca alberga varias edificaciones destinadas a turismo, eventos y explotación agrícola, distribuidas en torno a un patio central. Entre ellas, destacan las cuadras y almacenes para la ganadería equina, el edificio de administración y personal para el alojamiento del equipo de mantenimiento, una capilla para actos religiosos, un cobertizo utilizado como aparcamiento cubierto y la edificación principal que alberga la recepción, los servicios generales y las unidades de alojamiento.








